




Description
SCAMAC-IMMO, spécialiste en immobilier d'entreprise, vous propose :
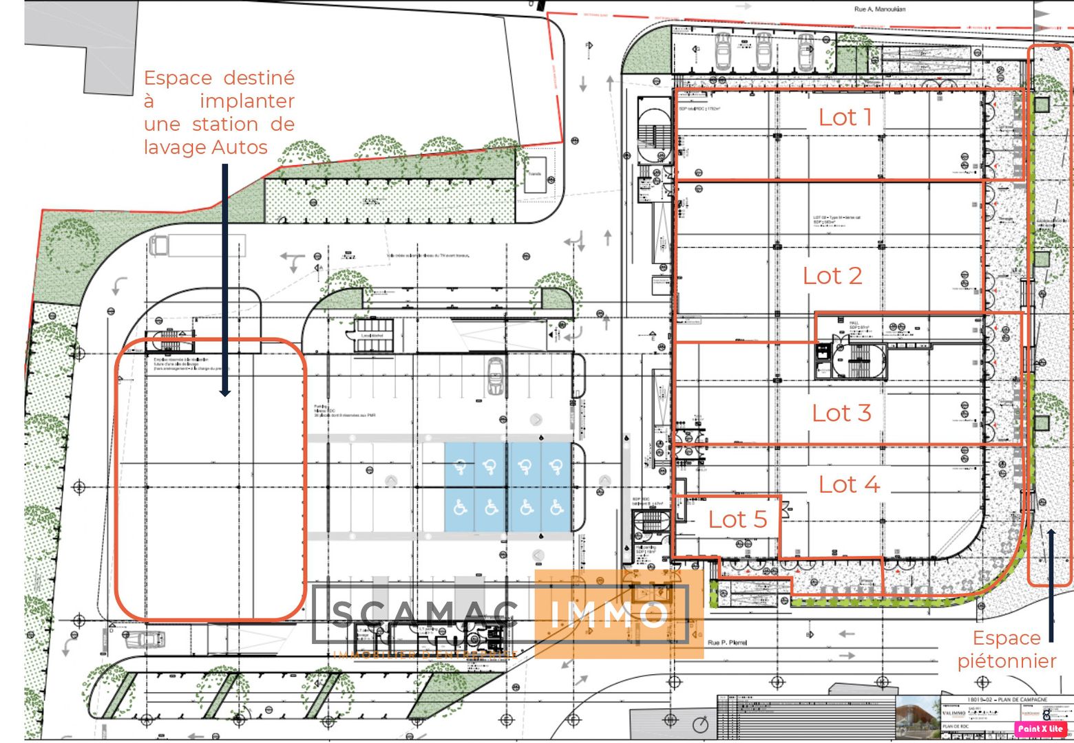
NOUVEAU PROJET LIVRAISON 2026 : RESTAURATION AUTORISEE + TERRASSE
Un Local Commercial de 106 m² à la location situé dans la Zone de Plan de Campagne entre Aix En Provence et Marseille. Idéalement placé dans un secteur bénéficiant d'une fréquentation importante ce local est situé à proximité des axes A51 / A55.
ÉQUIPEMENTS: Belle visibilité , places de parking, belles enseignes sur le site.
CONDITIONS FINANCIÈRES: A la location: 450euros / m²/ an HT/HC hors honoraires de commercialisation.
Pour davantage d'informations, retrouvez cette annonce sur notre site internet ou contactez-nous directement au bureau.
État : Neuf - Disponibilité : Nous consulter
Adresse
Les-Pennes-Mirabeau (Bouches-du-Rhône)
Valeur énergétique
En cours de détermination
Votre interlocuteur pour ce bien :

Pierre-Erick FIOKLOU
0660503100Superficies
Niveau 0
| Local Commercial | 106 m² |
Charges et taxes
| Charges annuelles | Nous consulter |
Caractéristiques techniques
Bâtiment
| Type de construction | Nous consulter |
| Type d'isolation | Nous consulter |
| Type de toiture | Nous consulter |
| Sprinkler | Non |
| Parking | VL : NC / PL : NC |
| Murs | Murs libres |
| Cession de bail | Non |
| Cession de fonds de commerce | Non |
| Location pure | Non |
| Sans droits d'entrée | Non |
Partie entrepôt / activité
| Hauteur libre | Min : NC / Max : NC |
| Charge sol | Nous consulter |
| Source de chauffage | Nous consulter |
| Type d'éclairage | Nous consulter |
| Commentaire | Nous consulter |
| ERP | Non |
| Rideau metallique | Non |
Partie bureaux
| Type de chauffage | Nous consulter |
Conditions financières
À la location
| Loyer ht hc (an) | 47 700 € |
| Loyer ht hc (m²/an) | 450 € |
| Régime fiscal | TVA |
| Type de bail | 3-6-9 ans |
| Dépot de garantie | 3 mois HT |
| Mode de paiement | Mensuel |
| Honoraires preneur HT | 15% du loyer annuel HTHC |