










Description
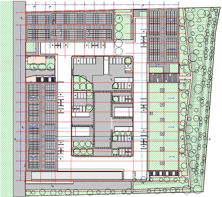
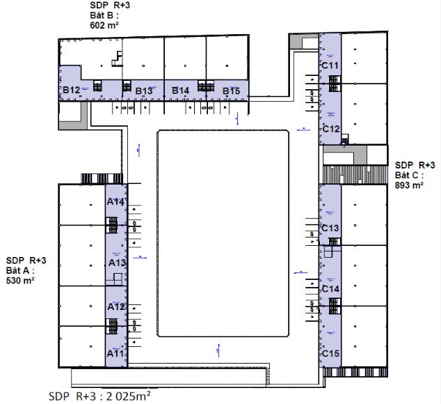
SCAMAC-IMMO commercialise à Tremblay-en-France (93), au sein de la ZAC AEROLIANS, des surfaces neuves d’activités et de bureaux à louer, disponibles à partir de 465 m². Chaque cellule comprend un espace d’activité en RDC avec porte sectionnelle plain-pied ou quai, et une mezzanine tertiaire. Hauteur sous plafond 7m, accès poids-lourds, résistance au sol 3t/m². Proximité immédiate A1/A3/A104/N2.
État : Très bon état - Disponibilité : immédiate
Adresse
Tremblay-en-France (Seine-Saint-Denis)
Valeur énergétique
En cours de détermination
Vos interlocuteurs pour ce bien :

Laurent POLO
06 70 04 66 39
Bruno ANTUNES
06 58 49 13 09Superficies
Niveau 0
| Entrepôt | 1 051 m² |
Niveau 1
| Bureaux | 278 m² |
Charges et taxes
| Charges (m²/an) | 10,18 € |
| Impot foncier (m²/an) | 20 € |
Caractéristiques techniques
Bâtiment
| Type de construction | Structure béton |
| Type d'isolation | Bardage double peau |
| Type de toiture | Toiture terrasse |
| Sprinkler | Non |
| Parking | VL : NC / PL : NC |
Partie entrepôt / activité
| Hauteur libre | Min : NC / Max : NC |
| Charge sol | Nous consulter |
| Source de chauffage | Nous consulter |
| Type d'éclairage | Nous consulter |
| Commentaire | Nous consulter |
Partie bureaux
| Type de chauffage | Nous consulter |
Conditions financières
À la location
| Loyer ht hc (an) | 179 374 € |
| Loyer ht hc (m²/an) | 135 € |
| Régime fiscal | TVA |
| Type de bail | 3-6-9 ans |
| Dépot de garantie | 3 mois HT |
| Mode de paiement | Trimestriel |
| Honoraires preneur HT | 15% du loyer annuel HTHC |