



Description
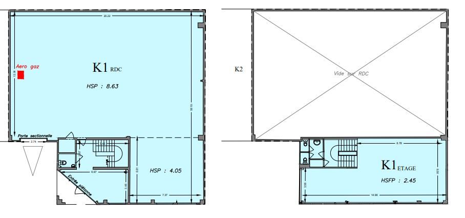
Scamac Immo, spécialiste de l'immobilier d'entreprise vous propose : Dans un parc d'activités, sécurisé et offrant de très bonnes prestations. RDC : Entrepôt de 380 m² R+1: Bureaux de 103 m2 Disposant de places de parking et d’une aire de manœuvre pour gros porteurs. Aux portes de Paris, le RER C et la ligne 7 du métro. Bâtiments de très bonne qualité. Gardiennage, ramassage déchets et vidéosurveillance compris dans les charges.
État : Très bon état - Disponibilité : Nous consulter
Adresse
Ivry-sur-Seine (Val-de-Marne)
Valeur énergétique
En cours de détermination
Votre interlocuteur pour ce bien :

Alexandre FILIPE
06 30 61 67 75Superficies
Niveau 0
| Entrepôt | 380 m² |
Niveau 1
| Bureaux | 103 m² |
Charges et taxes
| Charges annuelles | 18 509 € |
| Charges (m²/an) | 38,32 € |
| Taxe bureaux | Incluse |
| Taxe entrepôts | Incluse |
| Assurance | Incluse |
Caractéristiques techniques
Bâtiment
| Type de construction | Ossature métallique |
| Type d'isolation | Bardage double peau |
| Type de toiture | Bac acier multicouches |
| Sprinkler | Non |
| Parking | VL : NC / PL : NC |
Partie entrepôt / activité
| Hauteur libre | Min : 2.5 m / Max : 8.63 m |
| Charge sol | 3.5 |
| Entrepôt isolé | Oui |
| Type de chauffage | Aérothermes |
| Source de chauffage | Gaz |
| Accès plain pied | 1 |
| Type d'éclairage | Zénithal par skydome |
| Commentaire | Puissance électrique : 38Kva |
Partie bureaux
| Type de chauffage | Radiants |
Conditions financières
À la location
| Loyer ht hc (an) | 82 110 € |
| Loyer ht hc (m²/an) | 170 € |
| Régime fiscal | TVA |
| Type de bail | 3-6-9 ans |
| Dépot de garantie | 3 mois HT |
| Mode de paiement | Trimestriel d'avance |
| Honoraires preneur HT | Nous consulter |