Retour

à louer  : local d'activités de 146 m², Groslay (Val-d'Oise)

local d'activités de 146m², Groslay (Val-d'Oise)
local d'activités de 146m², Groslay (Val-d'Oise)
local d'activités de 146m², Groslay (Val-d'Oise)
local d'activités de 146m², Groslay (Val-d'Oise)

Description

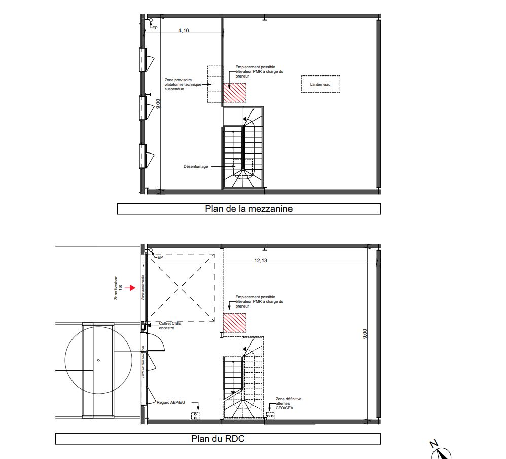
SCAMAC-IMMO, spécialisé en immobilier d'entreprise, vous propose: Des cellules d'activités neuves sur la commune de Groslay à partir de 150m² à 475m². SURFACES Entrepôt: 109 m² Bureaux RDC:36.9 m² Hauteur sous plafond: 7 m Accès livraison: 1 portes sectionnelles plain-pied de 3.5m CONDITIONS FINANCIERES A la location: 27 750 euros HT/HC/an hors honoraires de commercialisation Pour davantage d'informations, retrouvez cette annonce sur notre site internet ou contactez-nous directement.

État : Neuf - Disponibilité : Nous consulter

Adresse

Groslay (Val-d'Oise)

Valeur énergétique

A
B
C
D
E
F
G

En cours de détermination

Votre interlocuteur pour ce bien :

Mounaim AFIA

Mounaim AFIA

06 80 13 08 92

Superficies

Total : 146 m²

Niveau 0

Bureaux37 m²
Entrepôt109 m²

Charges et taxes

Charges annuellesNous consulter

Caractéristiques techniques

Bâtiment

Type de constructionOssature métallique
Type d'isolationParpaings
Type de toitureBac acier multicouches
SprinklerNon
ParkingVL : NC / PL : NC

Partie entrepôt / activité

Hauteur libreMin : 8 m / Max : 4 m
Charge sol3
Source de chauffageNous consulter
Accès plain pied1
Type d'éclairageNous consulter
CommentaireNous consulter

Partie bureaux

Type de chauffageNous consulter

Conditions financières

À la location

Loyer ht hc (an)27 750 €
Loyer ht hc (m²/an)185 €
Régime fiscalTVA
Type de bail3-6-9 ans
Dépot de garantie3 mois HT
Mode de paiementMensuel d'avance
Honoraires preneur HT15% du loyer annuel HTHC
Réf L 2504 95 001 13

Ces biens peuvent vous intéresser

Voir tous les biens similaires
annonces location local-activites Groslay

Ne manquez plus la moindre opportunité

Ma recherche

Demande de contact