


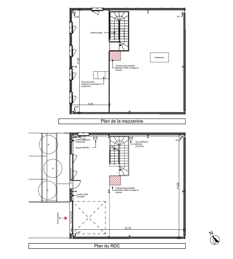
Description
SCAMAC-IMMO, spécialisé en immobilier d'entreprise, vous propose: Des cellules d'activités neuves sur la commune de Groslay à partir de 150m² à 475m². SURFACES Entrepôt: 134 m² Bureaux RDC:45m² Hauteur sous plafond: 7 m Accès livraison: 1 portes sectionnelles plain-pied de 3.5m CONDITIONS FINANCIERES A la location: 31 820 euros HT/HC/an hors honoraires de commercialisation Pour davantage d'informations, retrouvez cette annonce sur notre site internet ou contactez-nous directement.
État : Neuf - Disponibilité : Nous consulter
Adresse
Groslay (Val-d'Oise)
Valeur énergétique
En cours de détermination
Votre interlocuteur pour ce bien :
Mounaim AFIA
06 80 13 08 92Superficies
Niveau 0
| Bureaux | 45 m² |
| Entrepôt | 134 m² |
Charges et taxes
| Charges annuelles | Nous consulter |
Caractéristiques techniques
Bâtiment
| Type de construction | Ossature métallique |
| Type d'isolation | Parpaings |
| Type de toiture | Bac acier multicouches |
| Sprinkler | Non |
| Parking | VL : NC / PL : NC |
Partie entrepôt / activité
| Hauteur libre | Min : 8 m / Max : 4 m |
| Charge sol | 3 |
| Source de chauffage | Nous consulter |
| Accès plain pied | 1 |
| Type d'éclairage | Nous consulter |
| Commentaire | Nous consulter |
Partie bureaux
| Type de chauffage | Nous consulter |
Conditions financières
À la location
| Loyer ht hc (an) | 31 820 € |
| Loyer ht hc (m²/an) | 185 € |
| Régime fiscal | TVA |
| Type de bail | 3-6-9 ans |
| Dépot de garantie | 3 mois HT |
| Mode de paiement | Mensuel d'avance |
| Honoraires preneur HT | 15% du loyer annuel HTHC |